El Condor 400 | SCP0644

FICHA

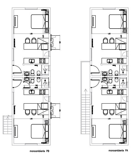
  • Producto Departamento Dúplex
  • Operación Venta
  • Barrio Dina Huapi
  • Ambientes 1
  • Baños 1
  • Estado En Obra
  • Disposición Frente
  • Sup. Propia 35,00 m2
  • Sup. Cubierta 35,00 m2

U$S 75.000

VENTA

El Condor 400

Dina Huapi

Monoambiente con opción de financiación. VALOR CONTADO: U$S 75.000 VALOR FINANCIADO: U$S 80.500 Complejo LA ESTEPA 2 Cómoda ubicación, a solo 100mts de Ruta 40 e inmediatez a comercios principales. Acceso directo a Bariloche (15km) y a Villa La Angostura (50km). CALIDAD CONSTRUCTIVA · Estructura de hormigón armado en planta baja y Steel Frame en planta alta · Aberturas de PVC simil lenga · Vidrios Termopanel · Pisos de porcelanato estilo San Lorenzo Bauhaus o Alberdi Zen · Revestimientos exteriores en Siding · Sistema de calefacción por radiadores mediante caldera independiente · La cocinas incluyen mueble bajo mesada con mesada de granito, · Griferías de primera línea y artefactos Ferrum Bari o Roca Mónaco MÓDULO MONOAMBIENTES Se ubican 2 en planta baja y 2 en planta alta Fecha estimativa de entrega: Diciembre 2027. Todos los servicios. . Martillero y Corredor Inmobiliario Pedro Sanchez Canova Mat. Nº 345 RP 21 Fº 424 TºII


*Las descripciones arquitectónicas, valores de expensas, impuestos o servicios, fotos y medidas de las propiedades son aproximados. Los datos fueron proporcionados por el propietario y pueden no estar actualizados a la hora de la visualización de este aviso por lo cual pueden arrojar inexactitudes o discordancias con las que surjan de los las facturas, títulos o planos legales del inmueble. Se pondrá a disposición del interesado la documentación necesaria a fin de realizar las verificaciones respectivas previamente a la realización de cualquier operación, requiriendo por sí o sus profesionales la documentación que corresponda.

CONTACTO





Solicitá tu tasación !

Nuestro compromiso es acompañarte y brindarte todo lo necesario para lograr tu objetivo.

Martillero y Corredor Inmobiliario Pedro Sanchez Canova. Matrícula Profesional Nº 345-RP-21 Fº 424 Tº II

Desarrollado por TecnoGestión Sistemas